Tokyoshinagawakuminamioi2
new
InformationLast up:2026/04/26
| Monthly cost |
115,000yen |
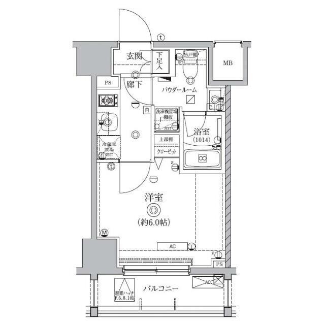
Layout |
1K |
| Maintenance fee |
15,000yen |
Room size |
20.20m² |
| Deposit |
free |
Key money |
0.5month |
Traffic
Oomorikaigan 8min. walk
JR-Keihin-tohoku・negishi lineOmori 13min. walk
address
Tokyoshinagawaku minamioi2
Property Type
mansion
Year Built
2022-01/
built 4 years
Available from
: 2026-06 中旬
Construction
RC
12 floors /
6 floor
Number
680876