• お電話のお問い合わせ
  • nakamaruko
    new
    Room Detail
    InformationLast up:2026/04/25
    Monthly cost 105,500yen Layout 1K
    Maintenance fee 6,500yen Room size 25.52m²
    Deposit free Key money 1month
    Traffic
    JR-Nambu lineHirama 7min. walk
    Yokosuka lineMusashikosugi 19min. walk
    address
    nakamaruko
    Property Type
    mansion
    Year Built
    2022-02/ built 4 years
    Available from
    Ask
    Construction
    RC  7 floors  / 7 floor
    Number
    680581
    (外観)
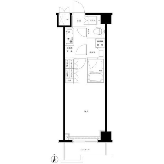
    (間取)
    (内装)
    (キッチン)
    (居間)
    (風呂)
    (玄関)
    (内装)
    クローゼット(内装)
    インターホン
    下足入(内装)
    ダウンライト
    (その他建物画像)
    エレベーター
    駐輪場
    平間駅(634m)(周辺)
    (外観)
    (間取)
    (内装)
    (キッチン)
    (居間)
    (風呂)
    (玄関)
    (内装)
    クローゼット(内装)
    インターホン
    下足入(内装)
    ダウンライト
    (その他建物画像)
    エレベーター
    駐輪場
    平間駅(634m)(周辺)

    Floor plan

    Floor plan
    Detailed information
    • Automatically lockable door
    • Separated toilet/shower
    • Indoor Laundry Storage
    • Separated Sink
    • Flooring
    • Condominium
    • Stove burner
    • Two stoves
    • Built-in kitchen
    • Garbage 24 hours available
    • Bath Dryer
    • Warm water washlet
    • Air con
    • CATV
    • CS antenna
    • BS antenna
    • Hikari Internet fiber
    • Intercom with a monitor
    • Security camera
    • City gas
    • Elevator
    • Delivery box
    • Bicycle-parking space
    • Balcony
    • Tiled wall
    • 2nd floor or above
    Dealer
    自由が丘店
    TEL:03-5720-8316
    Contact us to here
    Updated
    2026-05-09
    Floor details
    K 1.50 quire/ western style room 7.50 quire/        

    Close of conditions listing