Tokyoshinagawakuhigashioi3
new
InformationLast up:2026/04/25
| Monthly cost |
235,000yen |
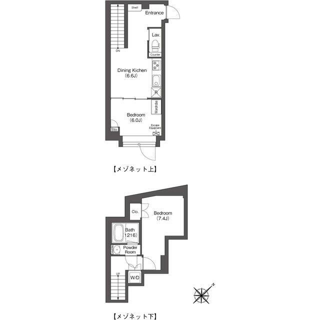
Layout |
2DK |
| Maintenance fee |
15,000yen |
Room size |
53.98m² |
| Deposit |
235,000yen |
Key money |
free |
Traffic
JR-Keihin-tohoku・negishi lineOoimachi 9min. walk Tachiaikawa 8min. walk
address
Tokyoshinagawaku higashioi3
Property Type
mansion
Year Built
2021-10/
built 4 years
Available from
Ask
Construction
RC
4 floors and 2 basement floors /
B1 floor
Number
676735