• お電話のお問い合わせ
  • Tokyosetakagyakuokusawa6
    new
    Room Detail
    InformationLast up:2026/04/25
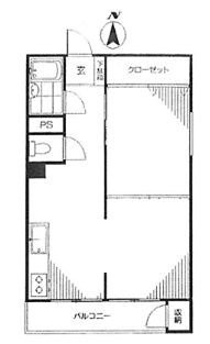
    Monthly cost 145,000yen Layout 1DK
    Maintenance fee 5,000yen Room size 35.00m²
    Deposit 1month Key money free
    Traffic
    Tokyu toyoko lineJiyugaoka 6min. walk
    Tokyu oimachi lineKuhonbutsu 4min. walk
    address
    Tokyosetakagyaku okusawa6
    Property Type
    mansion
    Year Built
    1973-03/ built 53 years
    Available from
    Ask
    Construction
    RC  4 floors  / 3 floor
    Number
    678938
    (外観)
    (間取)
    (内装)
    (キッチン)
    (居間)
    (その他建物画像)
    自由が丘駅(689m)(周辺)
    (外観)
    (間取)
    (内装)
    (キッチン)
    (居間)
    (その他建物画像)
    自由が丘駅(689m)(周辺)

    Floor plan

    Floor plan
    Detailed information
    • Automatically lockable door
    • Separated toilet/shower
    • Indoor Laundry Storage
    • Separated Sink
    • Flooring
    • Corner suite
    • Built-in kitchen
    • Warm water washlet
    • Air con
    • Free internet use
    • City gas
    • 2nd floor or above
    Dealer
    自由が丘店
    TEL:03-5720-8316
    Contact us to here
    Updated
    2026-05-09
    Floor details
             

    Close of conditions listing