• お電話のお問い合わせ
  • Tokyomegurokuchuocho2
    new
    Room Detail
    InformationLast up:2026/04/25
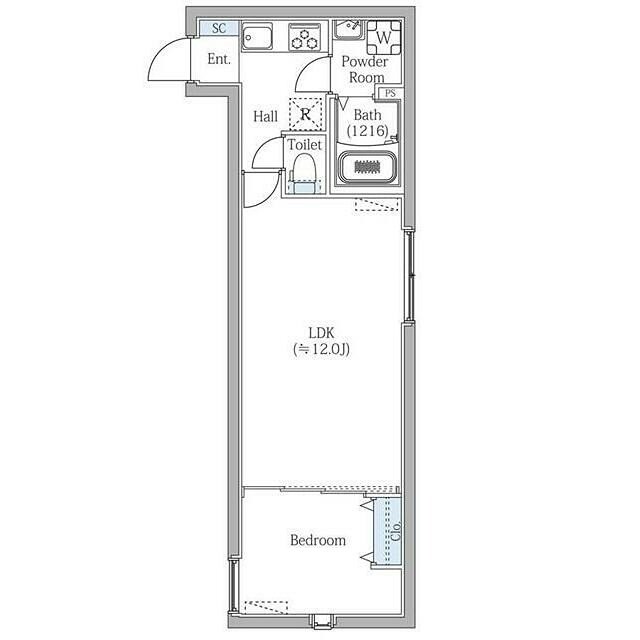
    Monthly cost 195,000yen Layout 1LDK
    Maintenance fee 15,000yen Room size 40.06m²
    Deposit 1month Key money 1month
    Traffic
    Tokyu toyoko lineGakugeidaigaku 5min. walk
    Tokyu toyoko lineYutenji 10min. walk
    address
    Tokyomeguroku chuocho2
    Property Type
    mansion
    Year Built
    2026-04/ new building
    Available from
    : 2026-05 上旬
    Construction
    RC  4 floors  / 4 floor
    Number
    676379
    (外観)
    (間取)
    学芸大学駅(424m)(周辺)
    (外観)
    (間取)
    学芸大学駅(424m)(周辺)

    Floor plan

    Floor plan
    Detailed information
    • Automatically lockable door
    • Separated toilet/shower
    • Indoor Laundry Storage
    • Separated Sink
    • Flooring
    • Stove burner
    • Three stoves
    • Built-in kitchen
    • Bath reheating
    • Bath Dryer
    • Air con
    • CS antenna
    • BS antenna
    • Delivery box
    • 2nd floor or above
    Dealer
    学芸大学店
    TEL:03-5720-8316
    Contact us to here
    Updated
    2026-05-09
    Floor details
             

    Close of conditions listing