• お電話のお問い合わせ
  • Tokyootakukamata5
    new
    Room Detail
    InformationLast up:2026/04/16
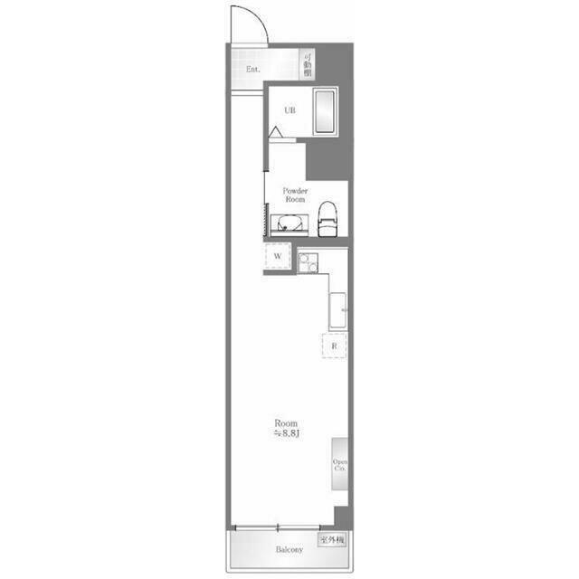
    Monthly cost 100,000yen Layout 1R
    Maintenance fee 12,000yen Room size 27.40m²
    Deposit 1month Key money 1month
    Traffic
    JR-Keihin-tohoku・negishi lineKamata 3min. walk Keikyuukamata 6min. walk
    address
    Tokyootaku kamata5
    Property Type
    mansion
    Year Built
    1985-08/ built 40 years
    Available from
    Ask
    Construction
      10 floors  and 2 basement floors / 9 floor
    Number
    678960
    (外観)
    (間取)
    (内装)
    (キッチン)
    (居間)
    (風呂)
    (内装)
    (その他建物画像)
    蒲田駅(417m)(周辺)
    (外観)
    (間取)
    (内装)
    (キッチン)
    (居間)
    (風呂)
    (内装)
    (その他建物画像)
    蒲田駅(417m)(周辺)

    Floor plan

    Floor plan
    Detailed information
    • Automatically lockable door
    • Separated toilet/shower
    • Indoor Laundry Storage
    • Separated Sink
    • Flooring
    • Stove burner
    • Two stoves
    • Built-in kitchen
    • Garbage 24 hours available
    • Bath Dryer
    • Warm water washlet
    • Air con
    • Security camera
    • Elevator
    • Balcony
    • 2nd floor or above
    Dealer
    大岡山店
    TEL:03-5720-8316
    Contact us to here
    Updated
    2026-04-30
    Floor details
             

    Close of conditions listing