• お電話のお問い合わせ
  • Tokyoshinagawakukamiosaki3
    new
    Room Detail
    InformationLast up:2026/04/25
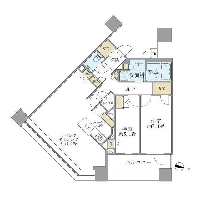
    Monthly cost 580,000yen Layout 2LDK
    Maintenance fee 20,000yen Room size 77.34m²
    Deposit 1month Key money 1month
    Traffic
    JR-Yamanote lineMeguro 2min. walk
    Tokyu meguro lineFudoumae 16min. walk
    address
    Tokyoshinagawaku kamiosaki3
    Property Type
    mansion
    Year Built
    2017-09/ built 8 years
    Available from
    Ask
    Construction
    RC  40 floors  and 3 basement floors / 23 floor
    Number
    679070
    (外観)
    (間取)
    (キッチン)
    (居間)
    (風呂)
    (玄関)
    (内装)
    (内装)
    (その他建物画像)
    (その他建物画像)
    目黒駅(212m)(周辺)
    (内装)
    (外観)
    (間取)
    (キッチン)
    (居間)
    (風呂)
    (玄関)
    (内装)
    (内装)
    (その他建物画像)
    (その他建物画像)
    目黒駅(212m)(周辺)
    (内装)

    Floor plan

    Floor plan
    Detailed information
    • Automatically lockable door
    • Separated toilet/shower
    • Indoor Laundry Storage
    • Separated Sink
    • Flooring
    • 2 people Available
    • Condominium
    • Stove burner
    • Three stoves
    • Built-in kitchen
    • Counter ktchen
    • Disposer
    • Bath reheating
    • Bath Dryer
    • Warm water washlet
    • Heating air con
    • Air con
    • Floor heating
    • Walk-in closet
    • CATV
    • CS antenna
    • BS antenna
    • Hikari Internet fiber
    • Intercom with a monitor
    • Security camera
    • City gas
    • Elevator
    • Delivery box
    • Bicycle-parking space
    • Balcony
    • 2nd floor or above
    Dealer
    武蔵小山店
    TEL:03-5720-8316
    Contact us to here
    Updated
    2026-05-09
    Floor details
             

    Close of conditions listing