• お電話のお問い合わせ
  • Tokyosetakagyakutamagawa2
    new
    Room Detail
    InformationLast up:2026/04/20
    Monthly cost 240,000yen Layout 2DK
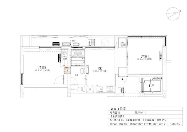
    Maintenance fee 6,000yen Room size 53.51m²
    Deposit 2month Key money free
    Traffic
    Tokyu denentoshi lineFutakotamagawa 9min. walk
    Tokyu oimachi lineKaminoge 13min. walk
    address
    Tokyosetakagyaku tamagawa2
    Property Type
    mansion
    Year Built
    2026-03/ new building
    Available from
    Ask
    Construction
    RC  5 floors  and 1 basement floors / 2 floor
    Number
    678697
    (外観)
    (間取)
    (居間)
    二子玉川駅(558m)(周辺)
    (外観)
    (間取)
    (居間)
    二子玉川駅(558m)(周辺)

    Floor plan

    Floor plan
    Detailed information
    • Automatically lockable door
    • Separated toilet/shower
    • Indoor Laundry Storage
    • Separated Sink
    • Flooring
    • Pet Friendly
    • IH stove
    • Three stoves
    • Bath reheating
    • Warm water washlet
    • Air con
    • Hikari Internet fiber
    • City gas
    • 2nd floor or above
    Dealer
    三軒茶屋店
    TEL:03-5720-8316
    Contact us to here
    Updated
    2026-05-04
    Floor details
             

    Close of conditions listing