Tokyosetakagyakushinmachi1
new
InformationLast up:2026/04/7
| Monthly cost |
175,000yen |
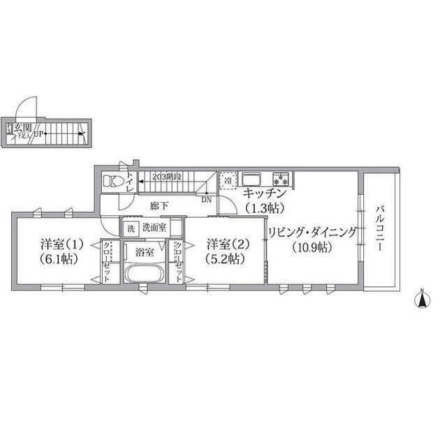
Layout |
2LDK |
| Maintenance fee |
5,000yen |
Room size |
57.87m² |
| Deposit |
17.5month |
Key money |
175,000yen |
Traffic
Tokyu denentoshi lineSakurashinmachi 13min. walk
Tokyu denentoshi lineKomazawadaigaku 18min. walk
address
Tokyosetakagyaku shinmachi1
Property Type
apartment
Year Built
2014-03/
built 12 years
Available from
Ask
Construction
Light-gauge steel
2 floors /
2 floor
Number
669161