• お電話のお問い合わせ
  • Tokyoshinagawakuminamishinagawa4
    new
    Room Detail
    InformationLast up:2026/03/2
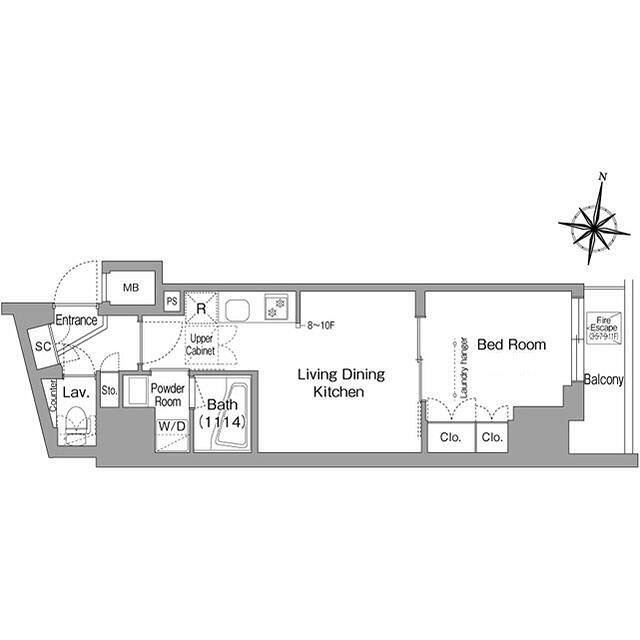
    Monthly cost 180,000yen Layout 1LDK
    Maintenance fee 10,000yen Room size 33.91m²
    Deposit 18month Key money free
    Traffic
    Shinbanba 2min. walk
    JR-Keihin-tohoku・negishi lineOoimachi 15min. walk
    address
    Tokyoshinagawaku minamishinagawa4
    Property Type
    mansion
    Year Built
    2025-04/ new building
    Available from
    Ask
    Construction
    RC  16 floors  / 7 floor
    Number
    667996
    (外観)
    (間取)
    (内装)
    (キッチン)
    (居間)
    (風呂)
    (玄関)
    (内装)
    (内装)
    シューズボックス
    (その他建物画像)
    オートロック
    新馬場駅(382m)(周辺)
    (外観)
    (間取)
    (内装)
    (キッチン)
    (居間)
    (風呂)
    (玄関)
    (内装)
    (内装)
    シューズボックス
    (その他建物画像)
    オートロック
    新馬場駅(382m)(周辺)

    Floor plan

    Floor plan
    Detailed information
    • Automatically lockable door
    • Separated toilet/shower
    • Indoor Laundry Storage
    • Separated Sink
    • Flooring
    • Pet Friendly
    • Built-in kitchen
    • Garbage 24 hours available
    • Bath Dryer
    • Warm water washlet
    • CS antenna
    • BS antenna
    • Free internet use
    • Intercom with a monitor
    • Security camera
    • City gas
    • Delivery box
    • Balcony
    • 2nd floor or above
    Dealer
    品川駅前店
    TEL:03-6388-6889
    Contact us to here
    Updated
    2026-03-16
    Floor details
             

    Close of conditions listing