Tokyochuokunihonbashihamacho1
new
InformationLast up:2026/03/4
| Monthly cost |
284,000yen |
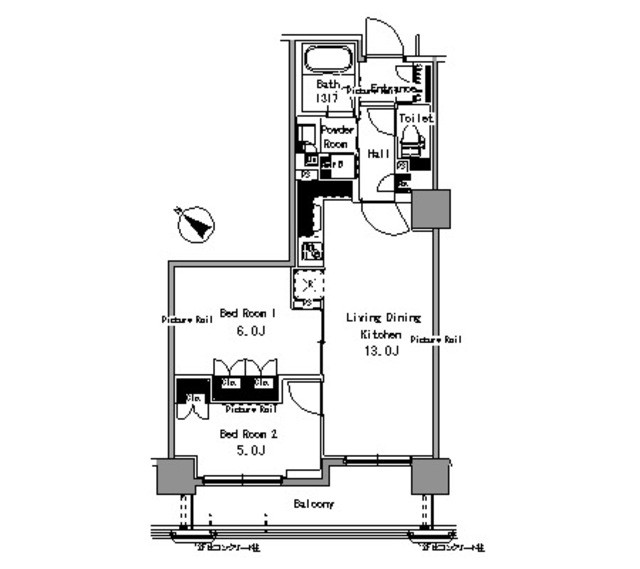
Layout |
2LDK |
| Maintenance fee |
10,000yen |
Room size |
53.68m² |
| Deposit |
1month |
Key money |
1month |
Traffic
Shinjyuku lineHamachou 4min. walk
Soubu lineBakurochou 8min. walk
Hibiya lineNingyocho 9min. walk
address
Tokyochuoku nihonbashihamacho1
Property Type
mansion
Year Built
2006-07/
built 19 years
Available from
: 2026-04 中旬
Construction
RC
12 floors /
8 floor
Number
671764