• お電話のお問い合わせ
  • aokicho
    Room Detail
    InformationLast up:2026/03/4
    Monthly cost 297,000yen Layout 3SLDK
    Maintenance fee 15,000yen Room size 70.95m²
    Deposit 29.7month Key money 297,000yen
    Traffic
    9min. walk Kanagawa 2min. walk
    address
    aokicho
    Property Type
    mansion
    Year Built
    2020-05/ built 5 years
    Available from
    Ask
    Construction
    RC  10 floors  / 8 floor
    Number
    672847
    (外観)
    (間取)
    (内装)
    (キッチン)
    (居間)
    (風呂)
    (玄関)
    (内装)
    その他
    (内装)
    オートロック
    (その他建物画像)
    横浜駅(1040m)(周辺)
    (外観)
    (間取)
    (内装)
    (キッチン)
    (居間)
    (風呂)
    (玄関)
    (内装)
    その他
    (内装)
    オートロック
    (その他建物画像)
    横浜駅(1040m)(周辺)

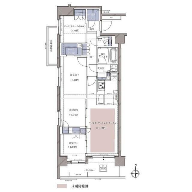
    Floor plan

    Floor plan
    Detailed information
    • Automatically lockable door
    • Separated toilet/shower
    • Indoor Laundry Storage
    • Separated Sink
    • Flooring
    • Pet Friendly
    • Stove burner
    • Three stoves
    • Built-in kitchen
    • Garbage 24 hours available
    • Dishwashing dryer
    • Bath reheating
    • Shampoo basin
    • Bath Dryer
    • Warm water washlet
    • CATV
    • CS antenna
    • BS antenna
    • Free internet use
    • Intercom with a monitor
    • Security camera
    • City gas
    • Delivery box
    • 2nd floor or above
    Dealer
    都立大学店
    TEL:03-6388-6889
    Contact us to here
    Updated
    2026-03-18
    Floor details
             

    Close of conditions listing