Tokyomegurokushimomeguro2
new
InformationLast up:2026/04/25
| Monthly cost |
275,000yen |
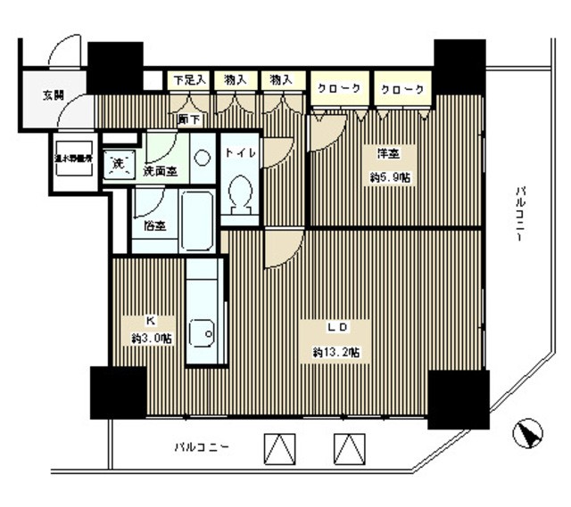
Layout |
1LDK |
| Maintenance fee |
free |
Room size |
57.40m² |
| Deposit |
1month |
Key money |
1month |
Traffic
JR-Yamanote lineMeguro 9min. walk
Tokyu meguro lineFudoumae 10min. walk
address
Tokyomeguroku shimomeguro2
Property Type
mansion
Year Built
2004-02/
built 22 years
Available from
Now
Construction
18 floors /
6 floor
Number
672193