• お電話のお問い合わせ
  • Tokyootakukamiikedai4
    new
    Room Detail
    InformationLast up:2026/04/5
    Monthly cost 89,000yen Layout 1K
    Maintenance fee 15,000yen Room size 21.00m²
    Deposit 1month Key money 1month
    Traffic
    Tokyu ikegami lineNagahara 10min. walk
    Asakusa lineMagome 14min. walk
    address
    Tokyootaku kamiikedai4
    Property Type
    mansion
    Year Built
    2013-03/ built 13 years
    Available from
    : 2026-03 中旬
    Construction
    RC  4 floors  / 4 floor
    Number
    672544
    (外観)
    (間取)
    (内装)
    (キッチン)
    (居間)
    (風呂)
    (玄関)
    (内装)
    (その他建物画像)
    (その他建物画像)
    長原駅(803m)(周辺)
    (外観)
    (間取)
    (内装)
    (キッチン)
    (居間)
    (風呂)
    (玄関)
    (内装)
    (その他建物画像)
    (その他建物画像)
    長原駅(803m)(周辺)

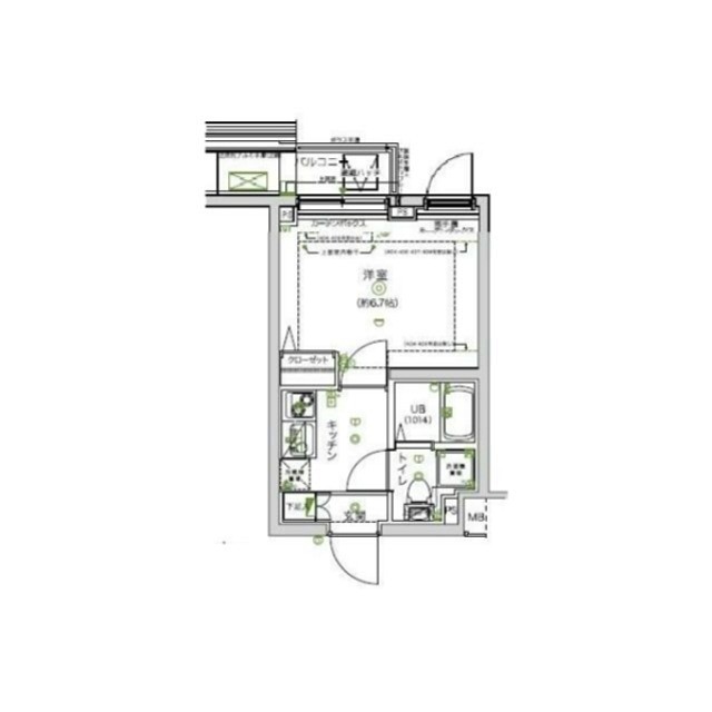
    Floor plan

    Floor plan
    Detailed information
    • Automatically lockable door
    • Separated toilet/shower
    • Indoor Laundry Storage
    • Separated Sink
    • Flooring
    • 2 people Available
    • Pet Friendly
    • Built-in kitchen
    • Bath Dryer
    • Warm water washlet
    • CS antenna
    • BS antenna
    • Intercom with a monitor
    • City gas
    • Delivery box
    • Bicycle-parking space
    • Motor bike parking space
    • Tiled wall
    • Designer's mansion
    • 2nd floor or above
    Dealer
    自由が丘店
    TEL:03-6388-6889
    Contact us to here
    Updated
    2026-04-19
    Floor details
             

    Close of conditions listing