• お電話のお問い合わせ
  • Tokyootakuunoki1
    new
    Room Detail
    InformationLast up:2026/03/4
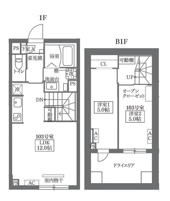
    Monthly cost 208,000yen Layout 2LDK
    Maintenance fee 6,000yen Room size 54.95m²
    Deposit 1month Key money free
    Traffic
    Tokyu tamagawa lineUnoki 4min. walk
    Tokyu ikegami lineKugahara 7min. walk
    address
    Tokyootaku unoki1
    Property Type
    mansion
    Year Built
    2025-05/ new building
    Available from
    Ask
    Construction
    RC  4 floors  and 1 basement floors / 1 floor
    Number
    671552
    (外観)
    (間取)
    駐輪場
    (その他建物画像)
    鵜の木駅(303m)(周辺)
    (外観)
    (間取)
    駐輪場
    (その他建物画像)
    鵜の木駅(303m)(周辺)

    Floor plan

    Floor plan
    Detailed information
    • Automatically lockable door
    • Separated toilet/shower
    • Indoor Laundry Storage
    • Separated Sink
    • Flooring
    • 2 people Available
    • Pet Friendly
    • Stove burner
    • Two stoves
    • Built-in kitchen
    • Bath reheating
    • Bath Dryer
    • Warm water washlet
    • CS antenna
    • BS antenna
    • Intercom with a monitor
    • Security camera
    • City gas
    • Delivery box
    Dealer
    学芸大学店
    TEL:03-6388-6889
    Contact us to here
    Updated
    2026-03-18
    Floor details
    LDK 12.00 quire/         

    Close of conditions listing