• お電話のお問い合わせ
  • tarumachi1
    Room Detail
    InformationLast up:2026/02/19
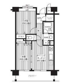
    Monthly cost 147,000yen Layout 2DK
    Maintenance fee 7,000yen Room size 44.98m²
    Deposit 2month Key money 1month
    Traffic
    Tokyu toyoko lineTsunashima 11min. walk
    Tokyu toyoko lineOkurayama 16min. walk
    Blue lineKita-shinyokohama 48min. walk
    address
    tarumachi1
    Property Type
    mansion
    Year Built
    2006-03/ built 20 years
    Available from
    Ask
    Construction
    RC  7 floors  / 3 floor
    Number
    654562
    (外観)
    (間取)
    (居間)
    (キッチン)
    (風呂)
    (内装)
    (内装)
    (内装)
    (その他建物画像)
    (その他建物画像)
    (その他建物画像)
    (外観)
    (間取)
    (居間)
    (キッチン)
    (風呂)
    (内装)
    (内装)
    (内装)
    (その他建物画像)
    (その他建物画像)
    (その他建物画像)

    Floor plan

    Floor plan
    Detailed information
    • Automatically lockable door
    • Separated toilet/shower
    • Indoor Laundry Storage
    • Separated Sink
    • Flooring
    Dealer
    中目黒店
    TEL:03-6388-6889
    Contact us to here
    Updated
    2026-03-05
    Floor details
             

    Close of conditions listing