• お電話のお問い合わせ
  • Tokyomegurokumidorigaoka2
    new
    Room Detail
    InformationLast up:2026/03/4
    Monthly cost 174,000yen Layout 1LDK
    Maintenance fee 3,000yen Room size 48.69m²
    Deposit free Key money 1month
    Traffic
    Tokyu toyoko lineJiyugaoka 10min. walk
    Tokyu oimachi lineMidorigaoka 8min. walk
    address
    Tokyomeguroku midorigaoka2
    Property Type
    apartment
    Year Built
    2014-07/ built 11 years
    Available from
    Ask
    Construction
    Wooden  2 floors  / 2 floor
    Number
    669915
    (外観)
    (間取)
    収納多数あり(内装)
    (キッチン)
    広いお部屋(居間)
    浴室乾燥換気扇付き(風呂)
    収納あり(玄関)
    ウォシュレッ付きト・収納あり(内装)
    広々収納あり(内装)
    広い居室・収納あり
    エアコン付き
    カウンターキッチン
    自由が丘駅(891m)(周辺)
    グリル付き3口コンロ
    (外観)
    (間取)
    収納多数あり(内装)
    (キッチン)
    広いお部屋(居間)
    浴室乾燥換気扇付き(風呂)
    収納あり(玄関)
    ウォシュレッ付きト・収納あり(内装)
    広々収納あり(内装)
    広い居室・収納あり
    エアコン付き
    カウンターキッチン
    自由が丘駅(891m)(周辺)
    グリル付き3口コンロ

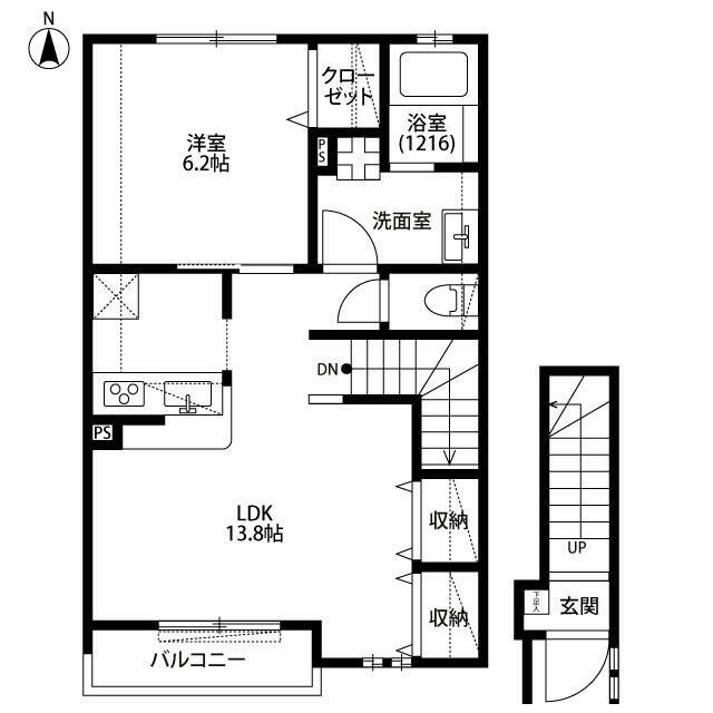
    Floor plan

    Floor plan
    Detailed information
    • Automatically lockable door
    • Separated toilet/shower
    • Indoor Laundry Storage
    • Separated Sink
    • Flooring
    • 2 people Available
    • Pet Friendly
    • Corner suite
    • Built-in kitchen
    • Counter ktchen
    • Bath reheating
    • Bath Dryer
    • Warm water washlet
    • CATV
    • Free internet use
    • Intercom with a monitor
    • City gas
    • Balcony
    • 2nd floor or above
    Dealer
    自由が丘店
    TEL:03-6388-6889
    Contact us to here
    Updated
    2026-03-18
    Floor details
    LDK 13.90 quire/ western style room 6.20 quire/        

    Close of conditions listing