• お電話のお問い合わせ
  • Tokyonerimakushakujimachi6
    Room Detail
    InformationLast up:2026/02/19
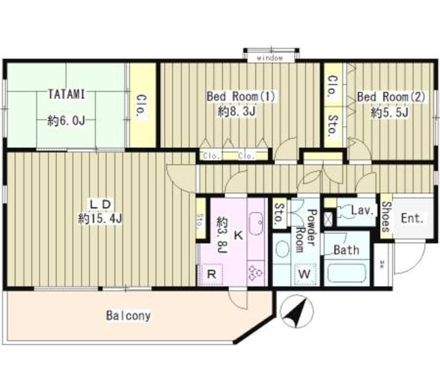
    Monthly cost 222,000yen Layout 3LDK
    Maintenance fee 12,000yen Room size 91.84m²
    Deposit 1month Key money 2month
    Traffic
    Seibu ikebukuro lineShakujii-koen 10min. walk
    address
    Tokyonerimaku shakujimachi6
    Property Type
    mansion
    Year Built
    1987-04/ built 38 years
    Available from
    : 2026-05 上旬
    Construction
    RC  3 floors  / 2 floor
    Number
    668820
    (外観)
    (その他建物画像)
    (その他建物画像)
    (間取)
    (外観)
    (その他建物画像)
    (その他建物画像)
    (間取)

    Floor plan

    Floor plan
    Detailed information
    • Automatically lockable door
    • Separated toilet/shower
    • Indoor Laundry Storage
    • Separated Sink
    • Flooring
    Dealer
    学芸大学店
    TEL:03-6388-6889
    Contact us to here
    Updated
    2026-03-05
    Floor details
    LDK 0.00 quire/         

    Close of conditions listing