• お電話のお問い合わせ
  • Tokyoshinagawakuminamioi5
    new
    Room Detail
    InformationLast up:2026/02/18
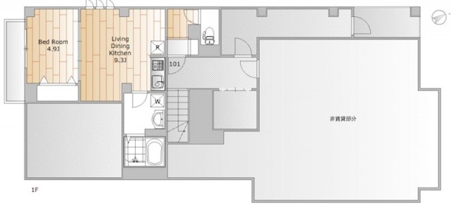
    Monthly cost 165,000yen Layout 1LDK
    Maintenance fee 5,000yen Room size 35.45m²
    Deposit 1month Key money 1month
    Traffic
    JR-Keihin-tohoku・negishi lineOmori 9min. walk Tachiaikawa 13min. walk
    address
    Tokyoshinagawaku minamioi5
    Property Type
    mansion
    Year Built
    2026-03/ new building
    Available from
    : 2026-03 下旬
    Construction
    S  5 floors  and 1 basement floors / 1 floor
    Number
    668333
    (外観)
    (間取)
    大森駅(908m)(周辺)
    (外観)
    (間取)
    大森駅(908m)(周辺)

    Floor plan

    Floor plan
    Detailed information
    • Automatically lockable door
    • Separated toilet/shower
    • Indoor Laundry Storage
    • Separated Sink
    • Flooring
    • 2 people Available
    • Pet Friendly
    • Corner suite
    • Built-in kitchen
    • Bath reheating
    • Bath Dryer
    • Free internet use
    • Intercom with a monitor
    • Security camera
    Dealer
    本社
    TEL:03-6388-6889
    Contact us to here
    Updated
    2026-03-04
    Floor details
    LDK 9.30 quire/ western style room 4.90 quire/        

    Close of conditions listing