• お電話のお問い合わせ
  • Tokyootakuden-enchofu honcho
    Room Detail
    InformationLast up:2026/02/24
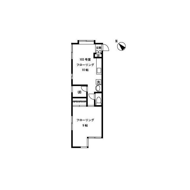
    Monthly cost 120,000yen Layout 1LDK
    Maintenance fee 5,000yen Room size 42.55m²
    Deposit 1month Key money 1month
    Traffic
    Tokyu toyoko lineTamagawa 7min. walk
    Tokyu tamagawa lineNumabe 5min. walk
    address
    Tokyootaku den-enchofu honcho
    Property Type
    apartment
    Year Built
    1992-01/ built 34 years
    Available from
    Ask
    Construction
    Wooden  2 floors  / 1 floor
    Number
    667577
    (外観)
    (間取)
    (内装)
    (キッチン)
    (居間)
    (風呂)
    (玄関)
    (内装)
    (内装)
    エアコン
    多摩川駅(824m)(周辺)
    (外観)
    (間取)
    (内装)
    (キッチン)
    (居間)
    (風呂)
    (玄関)
    (内装)
    (内装)
    エアコン
    多摩川駅(824m)(周辺)

    Floor plan

    Floor plan
    Detailed information
    • Automatically lockable door
    • Separated toilet/shower
    • Indoor Laundry Storage
    • Separated Sink
    • Flooring
    Dealer
    自由が丘店
    TEL:03-6388-6889
    Contact us to here
    Updated
    2026-03-10
    Floor details
    LDK 10.00 quire/ western style room 9.00 quire/        

    Close of conditions listing