Name (※required item)
Email (※required item)
Phone Number
visit date
Inquiry Want to go viewWant to discussWant to see some other options
Message
BALLEGGS CO.,ltd.
Name : President CEO contact:privacy@balleggs.co.jp
(1)To answer an inquiry(including a contact to person concerned) (2)To contact for an consultant (including a contact to person concerned) (3)To inform by email about services on our website and any information related to the services.
There are cases we entrust the personal information to a third party, within the scope necessary for the purpose above. In the case, we will select a third party with high-leveled quality of privacy information protect, sign a contract for proper handling of personal information/confidentiality and make them do proper management.
A person concerned can request one’s personal information disclosure(notification on purpose of use, disclosure, inform, correction, addition or deletion of the usage, cease the utilization, erase, and cease the third-party provision) by contacting our contact below. After we are able to confirm yourself, we will make the procedure in a period.
【Contact】
Balleggs Co.,ltd. Privacy policy contact center Address 2-5-21, Takaban, Meguro ku, Tokyo Phone number 03-3794-1115 email address privacy@balleggs.co.jp office hours: wee days 10:00~12:30, 13:30~18:20 *Except for our business holidays.
The provision of the personal information of yourself is optional. Although if we don't have the required items, there might be a service we cannot provide.
Δ
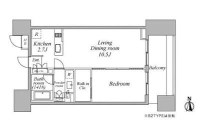
12min.walk
200,000yen
9min.walk
202,000yen
11min.walk
4min.walk
197,000yen