• お電話のお問い合わせ
  • Tokyootakuminamikamata2
    Room Detail
    InformationLast up:2026/02/19
    Monthly cost 94,000yen Layout 1K
    Maintenance fee 15,000yen Room size 20.00m²
    Deposit free Key money free
    Traffic
    Keikyuukamata 7min. walk Koujiya 10min. walk
    address
    Tokyootaku minamikamata2
    Property Type
    mansion
    Year Built
    2013-01/ built 13 years
    Available from
    Ask
    Construction
    RC  12 floors  / 2 floor
    Number
    661961
    (外観)
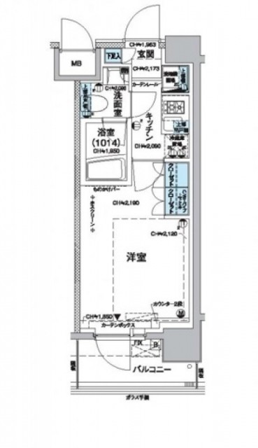
    (間取)
    (内装)
    ※同仕様写真含む(キッチン)
    ※同仕様写真含む(居間)
    (風呂)
    ※同仕様写真含む(居間)
    ※同仕様写真含む(内装)
    ※同仕様写真含む
    (その他建物画像)
    (その他建物画像)
    京急蒲田駅(671m)(周辺)
    (外観)
    (間取)
    (内装)
    ※同仕様写真含む(キッチン)
    ※同仕様写真含む(居間)
    (風呂)
    ※同仕様写真含む(居間)
    ※同仕様写真含む(内装)
    ※同仕様写真含む
    (その他建物画像)
    (その他建物画像)
    京急蒲田駅(671m)(周辺)

    Floor plan

    Floor plan
    Detailed information
    • Automatically lockable door
    • Separated toilet/shower
    • Indoor Laundry Storage
    • Separated Sink
    • Flooring
    Dealer
    品川駅前店
    TEL:03-6388-6889
    Contact us to here
    Updated
    2026-03-05
    Floor details
             

    Close of conditions listing