• お電話のお問い合わせ
  • Tokyosetakagyakukaminoge2
    Room Detail
    InformationLast up:2026/02/19
    Monthly cost 132,000yen Layout 1SDK
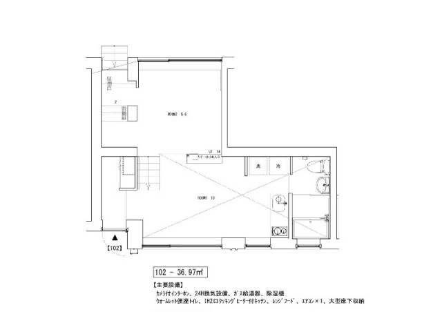
    Maintenance fee 6,000yen Room size 36.97m²
    Deposit 2month Key money free
    Traffic
    Tokyu denentoshi lineFutakotamagawa 13min. walk
    Tokyu oimachi lineKaminoge 8min. walk
    address
    Tokyosetakagyaku kaminoge2
    Property Type
    mansion
    Year Built
    2016-05/ built 9 years
    Available from
    Ask
    Construction
    RC  3 floors  and 1 basement floors / 1 floor
    Number
    665622
    (外観)
    (間取)
    (キッチン)
    (居間)
    (風呂)
    (玄関)
    (その他建物画像)
    二子玉川駅(829m)(周辺)
    (外観)
    (間取)
    (キッチン)
    (居間)
    (風呂)
    (玄関)
    (その他建物画像)
    二子玉川駅(829m)(周辺)

    Floor plan

    Floor plan
    Detailed information
    • Automatically lockable door
    • Separated toilet/shower
    • Indoor Laundry Storage
    • Separated Sink
    • Flooring
    Dealer
    桜新町店
    TEL:03-6388-6889
    Contact us to here
    Updated
    2026-03-05
    Floor details
    S 14.0 quire/ DK 10.00 quire/ western style room 5.60 quire/       

    Close of conditions listing