• お電話のお問い合わせ
  • Tokyoshinagawakuhiratsuka2
    new
    Room Detail
    InformationLast up:2026/02/18
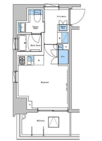
    Monthly cost 110,000yen Layout 1R
    Maintenance fee 10,000yen Room size 20.46m²
    Deposit 1month Key money 1month
    Traffic
    Tokyu ikegami lineTogoshiginza 5min. walk
    Asakusa lineTogoshi 7min. walk
    address
    Tokyoshinagawaku hiratsuka2
    Property Type
    mansion
    Year Built
    2021-11/ built 4 years
    Available from
    Ask
    Construction
    RC  12 floors  / 2 floor
    Number
    663756
    (外観)
    (間取)
    (内装)
    (キッチン)
    (居間)
    (風呂)
    シューズボックス(玄関)
    (内装)
    (内装)
    (その他建物画像)
    エレベーター
    戸越銀座(345m)(周辺)
    (外観)
    (間取)
    (内装)
    (キッチン)
    (居間)
    (風呂)
    シューズボックス(玄関)
    (内装)
    (内装)
    (その他建物画像)
    エレベーター
    戸越銀座(345m)(周辺)

    Floor plan

    Floor plan
    Detailed information
    • Automatically lockable door
    • Separated toilet/shower
    • Indoor Laundry Storage
    • Separated Sink
    • Flooring
    • Pet Friendly
    • Stove burner
    • Warm water washlet
    • CS antenna
    • BS antenna
    • Free internet use
    • Intercom with a monitor
    • Security camera
    • Delivery box
    • 2nd floor or above
    Dealer
    都立大学店
    TEL:03-6388-6889
    Contact us to here
    Updated
    2026-03-04
    Floor details
             

    Close of conditions listing