• お電話のお問い合わせ
  • Tokyoshibuyakuebisunishi2
    new
    Room Detail
    InformationLast up:2026/02/18
    Monthly cost 433,000yen Layout 1LDK
    Maintenance fee 12,000yen Room size 58.77m²
    Deposit 1month Key money 1month
    Traffic
    Hibiya lineEbisu 7min. walk
    Tokyu toyoko lineDaikanyama 5min. walk
    address
    Tokyoshibuyaku ebisunishi2
    Property Type
    mansion
    Year Built
    2008-10/ built 17 years
    Available from
    : 2026-02 下旬
    Construction
    RC  11 floors  and 1 basement floors / 6 floor
    Number
    662553
    (外観)
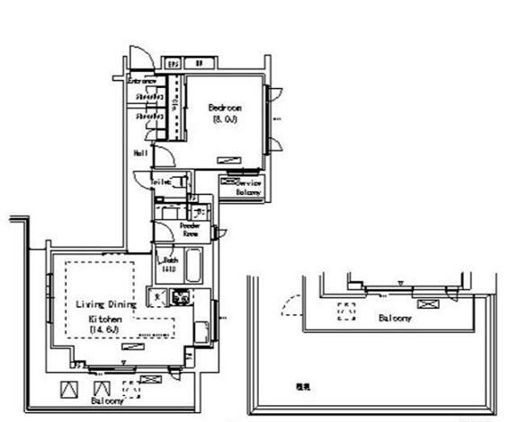
    (間取)
    ※写真は同タイプ住戸です。(内装)
    ※写真は同タイプ住戸です。(キッチン)
    ※写真は同タイプ住戸です。(居間)
    ※写真は同タイプ住戸です。(風呂)
    ※写真は同タイプ住戸です。(玄関)
    ※写真は同タイプ住戸です。
    ※写真は同タイプ住戸です。(内装)
    ※写真は同タイプ住戸です。(内装)
    ※写真は同タイプ住戸です。
    ※写真は同タイプ住戸です。
    (その他建物画像)
    恵比寿駅(620m)(周辺)
    (外観)
    (間取)
    ※写真は同タイプ住戸です。(内装)
    ※写真は同タイプ住戸です。(キッチン)
    ※写真は同タイプ住戸です。(居間)
    ※写真は同タイプ住戸です。(風呂)
    ※写真は同タイプ住戸です。(玄関)
    ※写真は同タイプ住戸です。
    ※写真は同タイプ住戸です。(内装)
    ※写真は同タイプ住戸です。(内装)
    ※写真は同タイプ住戸です。
    ※写真は同タイプ住戸です。
    (その他建物画像)
    恵比寿駅(620m)(周辺)

    Floor plan

    Floor plan
    Detailed information
    • Automatically lockable door
    • Separated toilet/shower
    • Indoor Laundry Storage
    • Separated Sink
    • Flooring
    • Instrument negotiable
    • Pet Friendly
    • Corner suite
    • Built-in kitchen
    • Bath reheating
    • Bath Dryer
    • CATV
    • CS antenna
    • BS antenna
    • Cable broadcasting
    • Intercom with a monitor
    • Delivery box
    • Balcony
    • 2nd floor or above
    Dealer
    三軒茶屋店
    TEL:03-6388-6889
    Contact us to here
    Updated
    2026-03-04
    Floor details
             

    Close of conditions listing