• お電話のお問い合わせ
  • Tokyomegurokunakacho2
    new
    Room Detail
    InformationLast up:2025/12/8
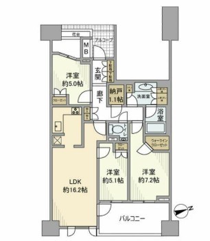
    Monthly cost 380,000yen Layout 3LDK
    Maintenance fee free Room size 80.28m²
    Deposit 2month Key money 1month
    Traffic
    Tokyu toyoko lineYutenji 8min. walk
    Tokyu toyoko lineGakugeidaigaku 11min. walk
    address
    Tokyomeguroku nakacho2
    Property Type
    mansion
    Year Built
    2005-10/ built 20 years
    Available from
    Ask
    Construction
    RC  12 floors  and 2 basement floors / 5 floor
    Number
    662546
    (外観)
    (間取)
    (その他建物画像)
    (その他建物画像)
    祐天寺駅(640m)(周辺)
    (外観)
    (間取)
    (その他建物画像)
    (その他建物画像)
    祐天寺駅(640m)(周辺)

    Floor plan

    Floor plan
    Detailed information
    • Automatically lockable door
    • Separated toilet/shower
    • Indoor Laundry Storage
    • Separated Sink
    • Flooring
    • 2 people Available
    • Condominium
    • Stove burner
    • Three stoves
    • Built-in kitchen
    • Dishwashing dryer
    • Disposer
    • Bath reheating
    • Bath Dryer
    • Warm water washlet
    • Trunk room
    • CATV
    • Intercom with a monitor
    • City gas
    • Delivery box
    • Balcony
    • 2nd floor or above
    Dealer
    祐天寺店
    TEL:03-6388-6889
    Contact us to here
    Updated
    2025-12-22
    Floor details
             

    Close of conditions listing