• お電話のお問い合わせ
  • Tokyochuoku
    Room Detail
    InformationLast up:2026/02/19
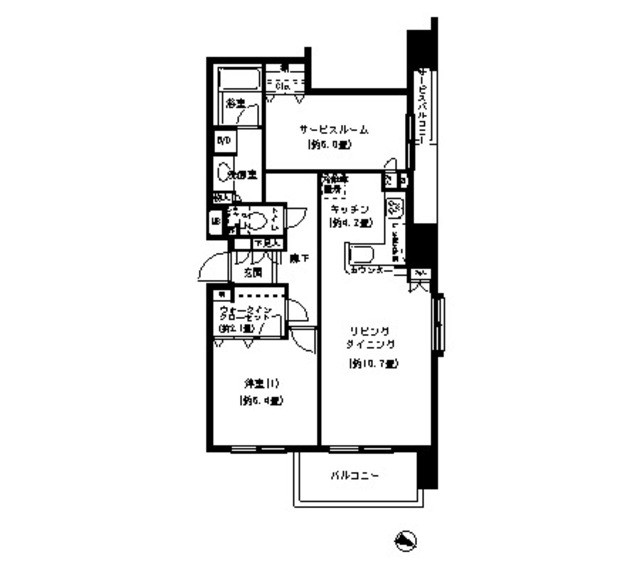
    Monthly cost 283,000yen Layout 1SLDK
    Maintenance fee free Room size 65.05m²
    Deposit 1month Key money 1.5month
    Traffic
    Hnzomon lineSuitenguumae 3min. walk
    Hibiya lineNingyocho 9min. walk
    Hibiya lineKayabacho 10min. walk
    address
    Tokyochuoku
    Property Type
    mansion
    Year Built
    2005-03/ built 21 years
    Available from
    : 2026-02 下旬
    Construction
    RC  11 floors  / 10 floor
    Number
    662301
    (外観)
    (外観)
    (その他建物画像)
    (その他建物画像)
    (その他建物画像)
    (その他建物画像)
    (間取)
    (外観)
    (外観)
    (その他建物画像)
    (その他建物画像)
    (その他建物画像)
    (その他建物画像)
    (間取)

    Floor plan

    Floor plan
    Detailed information
    • Automatically lockable door
    • Separated toilet/shower
    • Indoor Laundry Storage
    • Separated Sink
    • Flooring
    Dealer
    学芸大学店
    TEL:03-6388-6889
    Contact us to here
    Updated
    2026-03-05
    Floor details
    LDK 0.00 quire/         

    Close of conditions listing