• お電話のお問い合わせ
  • Tokyosetakagyakusetagaya2
    new
    Room Detail
    InformationLast up:2025/11/15
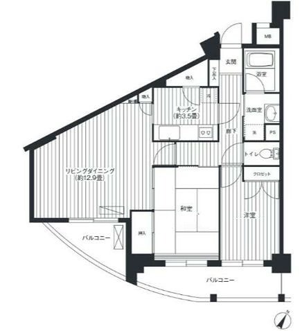
    Monthly cost 193,000yen Layout 2LDK
    Maintenance fee 7,000yen Room size 65.97m²
    Deposit 1month Key money 1month
    Traffic
    Tokyu setagaya lineKamimachi 7min. walk
    Tokyu denentoshi lineSakurashinmachi 15min. walk
    address
    Tokyosetakagyaku setagaya2
    Property Type
    mansion
    Year Built
    1999-06/ built 26 years
    Available from
    Ask
    Construction
    RC  6 floors  and 1 basement floors / 5 floor
    Number
    658904
    (外観)
    (間取)
    (内装)
    (キッチン)
    (居間)
    (風呂)
    (居間)
    (玄関)
    (内装)
    上町駅(565m)(周辺)
    (外観)
    (間取)
    (内装)
    (キッチン)
    (居間)
    (風呂)
    (居間)
    (玄関)
    (内装)
    上町駅(565m)(周辺)

    Floor plan

    Floor plan
    Detailed information
    • Automatically lockable door
    • Separated toilet/shower
    • Indoor Laundry Storage
    • Separated Sink
    • Flooring
    • Stove burner
    • Two stoves
    • Built-in kitchen
    • Bath reheating
    • BS antenna
    • Delivery box
    • Bicycle-parking space
    • Balcony
    • 2nd floor or above
    Dealer
    三軒茶屋店
    TEL:03-6388-6889
    Contact us to here
    Updated
    2025-11-29
    Floor details
    LDK 16.40 quire/ japanese-style room 5.50 quire/ western style room 6.50 quire/       

    Close of conditions listing