• お電話のお問い合わせ
  • Tokyosumidakumidori1
    new
    Room Detail
    InformationLast up:2025/12/10
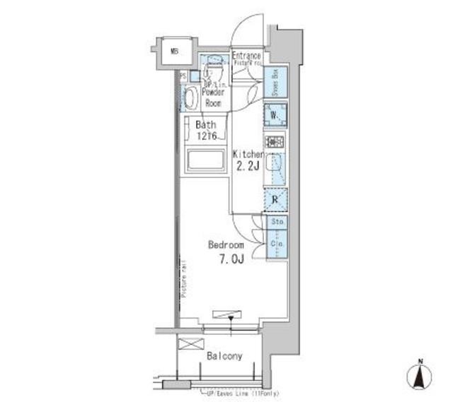
    Monthly cost 125,000yen Layout 1K
    Maintenance fee 8,000yen Room size 25.82m²
    Deposit 1month Key money 1month
    Traffic
    Oedo lineRyogoku 6min. walk
    Soubu lineRyogoku 11min. walk
    Shinjyuku lineMorishita 11min. walk
    address
    Tokyosumidaku midori1
    Property Type
    mansion
    Year Built
    2012-08/ built 13 years
    Available from
    : 2026-01 中旬
    Construction
    RC  11 floors  / 7 floor
    Number
    658030
    (外観)
    (外観)
    (その他建物画像)
    (その他建物画像)
    (間取)
    (外観)
    (外観)
    (その他建物画像)
    (その他建物画像)
    (間取)

    Floor plan

    Floor plan
    Detailed information
    • Automatically lockable door
    • Separated toilet/shower
    • Indoor Laundry Storage
    • Separated Sink
    • Flooring
    • Instrument negotiable
    • Office use prohibited
    • Pet Friendly
    • Bath Dryer
    • Air con
    • CATV
    • CS antenna
    • BS antenna
    • Elevator
    • Delivery box
    • Motor bike parking space
    • Balcony
    • 2nd floor or above
    Dealer
    学芸大学店
    TEL:03-6388-6889
    Contact us to here
    Updated
    2025-12-24
    Floor details
    K 0.00 quire/         

    Close of conditions listing