• お電話のお問い合わせ
  • Tokyokotokutatsumi2
    new
    Room Detail
    InformationLast up:2025/12/12
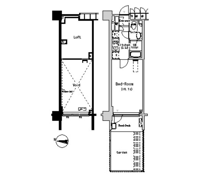
    Monthly cost 131,000yen Layout 1K
    Maintenance fee 8,000yen Room size 30.69m²
    Deposit 1month Key money 1month
    Traffic
    Yurakcyo lineTatsumi 6min. walk
    Keiyo lineShinkiba 16min. walk
    address
    Tokyokotoku tatsumi2
    Property Type
    mansion
    Year Built
    2008-01/ built 17 years
    Available from
    : 2025-12 下旬
    Construction
    RC  13 floors  / 1 floor
    Number
    656333
    (外観)
    (外観)
    (その他建物画像)
    (その他建物画像)
    (外観)
    (外観)
    (間取)
    (外観)
    (外観)
    (その他建物画像)
    (その他建物画像)
    (外観)
    (外観)
    (間取)

    Floor plan

    Floor plan
    Detailed information
    • Automatically lockable door
    • Separated toilet/shower
    • Indoor Laundry Storage
    • Separated Sink
    • Flooring
    • Instrument negotiable
    • Office use prohibited
    • Pet Friendly
    • Built-in kitchen
    • Bath Dryer
    • Air con
    • CS antenna
    • BS antenna
    • High-speed Internet
    • Elevator
    • Delivery box
    • Motor bike parking space
    • Garden
    Dealer
    学芸大学店
    TEL:03-6388-6889
    Contact us to here
    Updated
    2025-12-26
    Floor details
    K 0.00 quire/         

    Close of conditions listing