• お電話のお問い合わせ
  • Tokyootakuunoki1
    Room Detail
    InformationLast up:2025/11/28
    Monthly cost 200,000yen Layout 2LDK
    Maintenance fee free Room size 75.98m²
    Deposit 2month Key money 1month
    Traffic
    Tokyu tamagawa lineUnoki 3min. walk
    Tokyu tamagawa lineShimomaruko 10min. walk
    Tokyu ikegami lineKugahara 9min. walk
    address
    Tokyootaku unoki1
    Property Type
    residential home
    Year Built
    2014-05/ built 11 years
    Available from
    Ask
    Construction
    Wooden  2 floors  / 2 floor
    Number
    653492
    (外観)
    (間取)
    (居間)
    (キッチン)
    (風呂)
    (内装)
    (内装)
    (内装)
    (その他建物画像)
    久が原駅(周辺)
    【交番】久が原駅から(周辺)
    【大田区立大森第七中学校】久が原駅から(周辺)
    【郵便局】久が原駅から(周辺)
    【大田区立東調布第三小学校】久が原駅から(周辺)
    【大田区立大田図書館】久が原駅から(周辺)
    (外観)
    (間取)
    (居間)
    (キッチン)
    (風呂)
    (内装)
    (内装)
    (内装)
    (その他建物画像)
    久が原駅(周辺)
    【交番】久が原駅から(周辺)
    【大田区立大森第七中学校】久が原駅から(周辺)
    【郵便局】久が原駅から(周辺)
    【大田区立東調布第三小学校】久が原駅から(周辺)
    【大田区立大田図書館】久が原駅から(周辺)

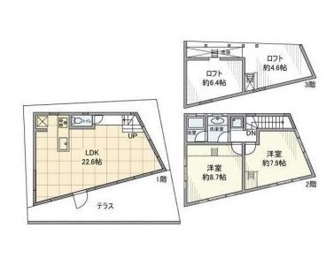
    Floor plan

    Floor plan
    Detailed information
    • Automatically lockable door
    • Separated toilet/shower
    • Indoor Laundry Storage
    • Separated Sink
    • Flooring
    • Office use prohibited
    • Guarantor unnecessary
    • Corner suite
    • Stove burner
    • Three stoves
    • Built-in kitchen
    • Counter ktchen
    • Dishwashing dryer
    • Bath reheating
    • Shampoo basin
    • Bath Dryer
    • Warm water washlet
    • Air con
    • Intercom with a monitor
    • City gas
    • Garden
    • 2nd floor or above
    Dealer
    武蔵小山店
    TEL:03-6388-6889
    Contact us to here
    Updated
    2025-12-12
    Floor details
    LDK 22.60 quire/ western style room 7.90 quire/ western style room 8.70 quire/       

    Close of conditions listing