• お電話のお問い合わせ
  • Tokyosetakagyakutodoroki7
    new
    Room Detail
    InformationLast up:2026/02/18
    Monthly cost 230,000yen Layout 2LDK
    Maintenance fee free Room size 70.20m²
    Deposit 1month Key money 2month
    Traffic
    Tokyu oimachi lineTodoroki 14min. walk
    Tokyu oimachi lineOyamadai 15min. walk
    Tokyu toyoko lineJiyugaoka 25min. walk
    address
    Tokyosetakagyaku todoroki7
    Property Type
    apartment
    Year Built
    2014-02/ built 12 years
    Available from
    Ask
    Construction
    Light-gauge steel  2 floors  / 1 floor
    Number
    649675
    (外観)
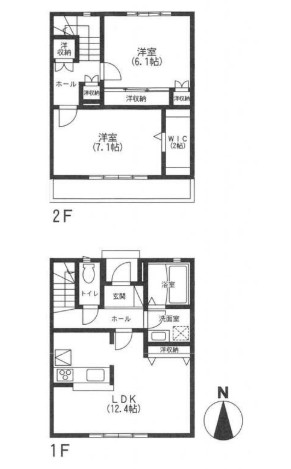
    (間取)
    (居間)
    (キッチン)
    (風呂)
    (内装)
    (内装)
    (内装)
    (内装)
    等々力駅(周辺)
    【郵便局】等々力駅から(周辺)
    【役所】等々力駅から(周辺)
    【世田谷区立玉川小学校】等々力駅から(周辺)
    【玉川警察署】等々力駅から(周辺)
    【世田谷区立尾山台中学校】等々力駅から(周辺)
    (外観)
    (間取)
    (居間)
    (キッチン)
    (風呂)
    (内装)
    (内装)
    (内装)
    (内装)
    等々力駅(周辺)
    【郵便局】等々力駅から(周辺)
    【役所】等々力駅から(周辺)
    【世田谷区立玉川小学校】等々力駅から(周辺)
    【玉川警察署】等々力駅から(周辺)

    Floor plan

    Floor plan
    Detailed information
    • Automatically lockable door
    • Separated toilet/shower
    • Indoor Laundry Storage
    • Separated Sink
    • Flooring
    • 2 people Available
    • Pet Friendly
    • Guarantor unnecessary
    • IH stove
    • Three stoves
    • Built-in kitchen
    • Counter ktchen
    • Garbage 24 hours available
    • Bath reheating
    • Shampoo basin
    • Bath Dryer
    • Warm water washlet
    • Air con
    • Walk-in closet
    • CATV
    • Intercom with a monitor
    • Card key
    • City gas
    • Car parking space
    • Bicycle-parking space
    • Balcony
    • Tiled wall
    Dealer
    自由が丘店
    TEL:03-6388-6889
    Contact us to here
    Updated
    2026-03-04
    Floor details
    LDK 12.40 quire/ western style room 7.10 quire/ western style room 6.10 quire/       

    Close of conditions listing