Tokyoshinagawakuhigashi-shinagawa3
new
InformationLast up:2026/04/25
| Monthly cost |
256,000yen |
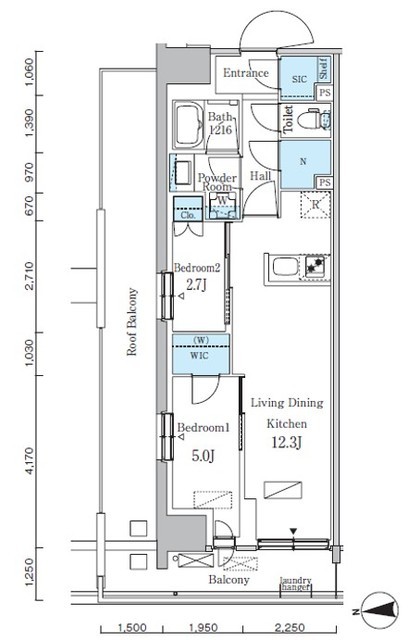
Layout |
2LDK |
| Maintenance fee |
20,000yen |
Room size |
50.40m² |
| Deposit |
1month |
Key money |
free |
Traffic
Shinagawa seasaide 7min. walk
Tokyo monorailTennozu Isle 10min. walk Tennozu Isle 7min. walk
address
Tokyoshinagawaku higashi-shinagawa3
Property Type
mansion
Year Built
2025-03/
built 1 years
Available from
Now
Construction
RC
14 floors /
11 floor
Number
637711