• お電話のお問い合わせ
  • Tokyominatokluminamiaoyama3
    new
    Room Detail
    InformationLast up:2026/04/26
    Monthly cost 275,000yen Layout 1LDK
    Maintenance fee 5,000yen Room size 44.09m²
    Deposit 1month Key money 2month
    Traffic
    Chiyoda lineOmote-sando 3min. walk
    Chiyoda lineMeijijingumae 17min. walk
    address
    Tokyominatoklu minamiaoyama3
    Property Type
    apartment
    Year Built
    2026-06/ new building
    Available from
    Ask
    Construction
    Wooden  3 floors  / 1 floor
    Number
    680816
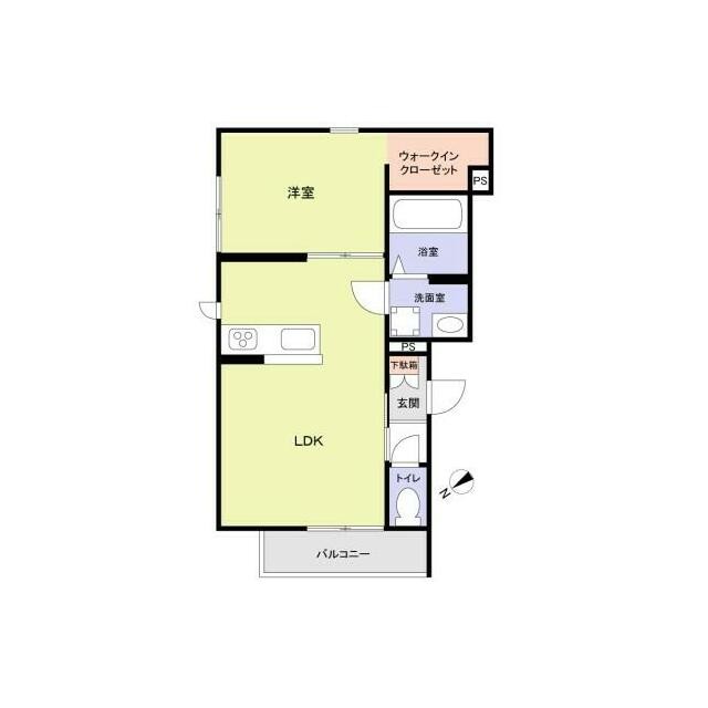
    (間取)
    表参道駅(331m)(周辺)
    (間取)
    表参道駅(331m)(周辺)

    Floor plan

    Floor plan
    Detailed information
    • Automatically lockable door
    • Separated toilet/shower
    • Indoor Laundry Storage
    • Separated Sink
    • Flooring
    • 2 people Available
    • IH stove
    • Two stoves
    • Air con
    • Walk-in closet
    • CATV
    • City gas
    • Bicycle-parking space
    • Balcony
    Dealer
    中目黒店
    TEL:03-5720-8316
    Contact us to here
    Updated
    2026-05-10
    Floor details
    LDK 13.20 quire/ western style room 6.10 quire/        

    Close of conditions listing