• お電話のお問い合わせ
  • Tokyoshinagawakuhigashioi6
    new
    Room Detail
    InformationLast up:2025/12/7
    Monthly cost 70,000yen Layout 1R
    Maintenance fee 2,000yen Room size 19.87m²
    Deposit 7month Key money 70,000yen
    Traffic
    JR-Keihin-tohoku・negishi lineOoimachi 9min. walk
    Tokyu oimachi lineOoimachi 9min. walk
    address
    Tokyoshinagawaku higashioi6
    Property Type
    apartment
    Year Built
    1992-09/ built 33 years
    Available from
    Ask
    Construction
    Wooden  2 floors  / 1 floor
    Number
    659346
    (外観)
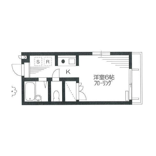
    (間取)
    (内装)
    (キッチン)
    (居間)
    (風呂)
    (玄関)
    (内装)
    (その他建物画像)
    大井町駅(965m)(周辺)
    (外観)
    (間取)
    (内装)
    (キッチン)
    (居間)
    (風呂)
    (玄関)
    (内装)
    (その他建物画像)
    大井町駅(965m)(周辺)

    Floor plan

    Floor plan
    Detailed information
    • Automatically lockable door
    • Separated toilet/shower
    • Indoor Laundry Storage
    • Separated Sink
    • Flooring
    • Single tenant only
    • IH stove
    • CATV
    • City gas
    Dealer
    品川駅前店
    TEL:03-6388-6889
    Contact us to here
    Updated
    2025-12-21
    Floor details
             

    Close of conditions listing