• お電話のお問い合わせ
  • Tokyomegurokumegurohoncho6
    new
    Room Detail
    InformationLast up:2025/12/7
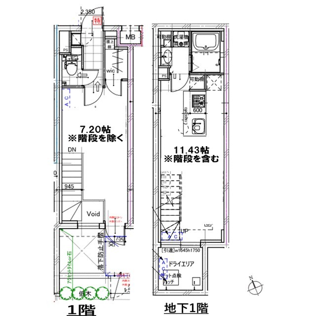
    Monthly cost 169,000yen Layout 1LDK
    Maintenance fee 5,000yen Room size 44.38m²
    Deposit 1month Key money free
    Traffic
    Tokyu meguro lineNishikoyama 9min. walk
    Tokyu meguro lineMusashikoyama 15min. walk
    address
    Tokyomeguroku megurohoncho6
    Property Type
    mansion
    Year Built
    2021-03/ built 4 years
    Available from
    Ask
    Construction
    RC  4 floors  and 1 basement floors / floor
    Number
    658994
    (外観)
    (間取)
    (内装)
    (キッチン)
    (居間)
    (風呂)
    (居間)
    (玄関)
    (内装)
    西小山駅(745m)(周辺)
    (外観)
    (間取)
    (内装)
    (キッチン)
    (居間)
    (風呂)
    (居間)
    (玄関)
    (内装)
    西小山駅(745m)(周辺)

    Floor plan

    Floor plan
    Detailed information
    • Automatically lockable door
    • Separated toilet/shower
    • Indoor Laundry Storage
    • Separated Sink
    • Flooring
    • Stove burner
    • Two stoves
    • Built-in kitchen
    • Bath Dryer
    • Warm water washlet
    • Free internet use
    • Intercom with a monitor
    • City gas
    • Delivery box
    Dealer
    学芸大学店
    TEL:03-6388-6889
    Contact us to here
    Updated
    2025-12-21
    Floor details
    LDK 11.40 quire/ western style room 7.20 quire/        

    Close of conditions listing