• お電話のお問い合わせ
  • Tokyosetakagyakukamiuma2
    Room Detail
    InformationLast up:2025/11/28
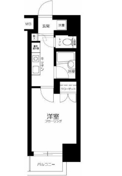
    Monthly cost 80,000yen Layout 1K
    Maintenance fee 10,000yen Room size 19.30m²
    Deposit 1month Key money 1month
    Traffic
    Tokyu denentoshi lineKomazawadaigaku 5min. walk
    Tokyu denentoshi lineSangendzaya 12min. walk
    Tokyu setagaya lineNishitaishidou 15min. walk
    address
    Tokyosetakagyaku kamiuma2
    Property Type
    mansion
    Year Built
    1997-10/ built 28 years
    Available from
    Ask
    Construction
      14 floors  / 4 floor
    Number
    655332
    (外観)
    (間取)
    (キッチン)
    (キッチン)
    (風呂)
    (内装)
    (内装)
    (玄関)
    (内装)
    駒沢大学駅から(周辺)
    【世田谷上馬郵便局】駒沢大学駅から(周辺)
    【世田谷区警察署 上馬交番】駒沢大学駅から(周辺)
    【駒沢オリンピック公園】駒沢大学駅から(周辺)
    【世田谷区立駒沢小学校】駒沢大学駅から(周辺)
    【世田谷区立駒沢中学校】駒沢大学駅から(周辺)
    (外観)
    (間取)
    (キッチン)
    (キッチン)
    (風呂)
    (内装)
    (内装)
    (玄関)
    (内装)
    駒沢大学駅から(周辺)
    【世田谷上馬郵便局】駒沢大学駅から(周辺)
    【世田谷区警察署 上馬交番】駒沢大学駅から(周辺)
    【駒沢オリンピック公園】駒沢大学駅から(周辺)
    【世田谷区立駒沢小学校】駒沢大学駅から(周辺)

    Floor plan

    Floor plan
    Detailed information
    • Automatically lockable door
    • Separated toilet/shower
    • Indoor Laundry Storage
    • Separated Sink
    • Flooring
    • Corner suite
    • Condominium
    • Stove burner
    • IH stove
    • Built-in kitchen
    • Air con
    • Intercom with a monitor
    • City gas
    • Elevator
    • Delivery box
    • Bicycle-parking space
    • Motor bike parking space
    • Balcony
    • Tiled wall
    • 2nd floor or above
    Dealer
    桜新町店
    TEL:03-6388-6889
    Contact us to here
    Updated
    2025-12-12
    Floor details
             

    Close of conditions listing