• お電話のお問い合わせ
  • Tokyomegurokushimomeguro2
    Room Detail
    InformationLast up:2025/11/28
    Monthly cost 498,000yen Layout 2SLDK
    Maintenance fee free Room size 82.52m²
    Deposit 1month Key money 1month
    Traffic
    Tokyu meguro lineMeguro 7min. walk
    Tokyu meguro lineFudoumae 11min. walk
    Mita lineMeguro 15min. walk
    address
    Tokyomeguroku shimomeguro2
    Property Type
    residential home
    Year Built
    2012-06/ built 13 years
    Available from
    Ask
    Construction
    Wooden  3 floors  / 1 floor
    Number
    657152
    (外観)
    (間取)
    (居間)
    (キッチン)
    (風呂)
    (内装)
    (内装)
    (内装)
    (玄関)
    (内装)
    (その他建物画像)
    目黒駅から(周辺)
    【目黒区立目黒区民センター図書館】目黒駅から(周辺)
    【目黒区立大鳥中学校】目黒駅から(周辺)
    【目黒区立下目黒小学校】目黒駅から(周辺)
    【国立科学博物館附属 自然教育園】目黒駅から(周辺)
    【交番】目黒駅から(周辺)
    (外観)
    (間取)
    (居間)
    (キッチン)
    (風呂)
    (内装)
    (内装)
    (内装)
    (玄関)
    (内装)
    (その他建物画像)
    目黒駅から(周辺)
    【目黒区立目黒区民センター図書館】目黒駅から(周辺)
    【目黒区立大鳥中学校】目黒駅から(周辺)
    【目黒区立下目黒小学校】目黒駅から(周辺)
    【国立科学博物館附属 自然教育園】目黒駅から(周辺)

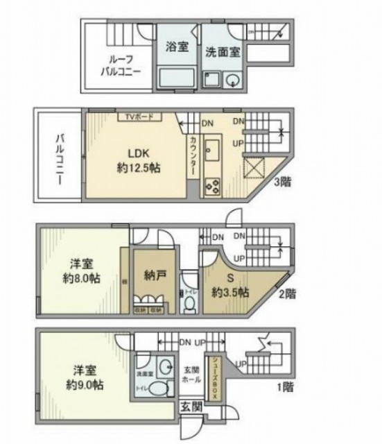
    Floor plan

    Floor plan
    Detailed information
    • Automatically lockable door
    • Separated toilet/shower
    • Indoor Laundry Storage
    • Separated Sink
    • Flooring
    • 2 people Available
    • Guarantor unnecessary
    • Corner suite
    • Stove burner
    • Three stoves
    • Built-in kitchen
    • Counter ktchen
    • Dishwashing dryer
    • Bath reheating
    • Shampoo basin
    • Warm water washlet
    • Intercom with a monitor
    • City gas
    • Delivery box
    • Balcony
    Dealer
    武蔵小山店
    TEL:03-6388-6889
    Contact us to here
    Updated
    2025-12-12
    Floor details
    S 3.5 quire/ LDK 12.50 quire/ western style room 9.00 quire/ western style room 8.00 quire/      

    Close of conditions listing