• お電話のお問い合わせ
  • Tokyomegurokumegurohoncho1
    new
    Room Detail
    InformationLast up:2025/12/7
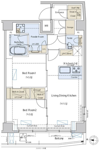
    Monthly cost 305,000yen Layout 2LDK
    Maintenance fee 15,000yen Room size 55.24m²
    Deposit 1month Key money 1.5month
    Traffic
    Tokyu toyoko lineGakugeidaigaku 14min. walk
    JR-Yamanote lineMeguro
    Tokyu meguro lineMusashikoyama 15min. walk
    address
    Tokyomeguroku megurohoncho1
    Property Type
    mansion
    Year Built
    2025-07/ new building
    Available from
    Now
    Construction
    RC  5 floors  / 4 floor
    Number
    619820
    (外観)
    (外観)
    (その他建物画像)
    (間取)
    (外観)
    (外観)
    (その他建物画像)
    (間取)

    Floor plan

    Floor plan
    Detailed information
    • Automatically lockable door
    • Separated toilet/shower
    • Indoor Laundry Storage
    • Separated Sink
    • Flooring
    • Office use prohibited
    • Pet Friendly
    • Built-in kitchen
    • Bath Dryer
    • Air con
    • Walk-in closet
    • CATV
    • CS antenna
    • BS antenna
    • Elevator
    • Delivery box
    • Motor bike parking space
    • Balcony
    • 2nd floor or above
    Dealer
    学芸大学店
    TEL:03-6388-6889
    Contact us to here
    Updated
    2025-12-21
    Floor details
    LDK 0.00 quire/         

    Close of conditions listing